FEATURED Project

Structural Lintel Repair & Masonry Stabilization

Return to All Projects

Project Highlights

  • Service Provided: Structural lintel replacement, masonry restoration, and façade stabilization

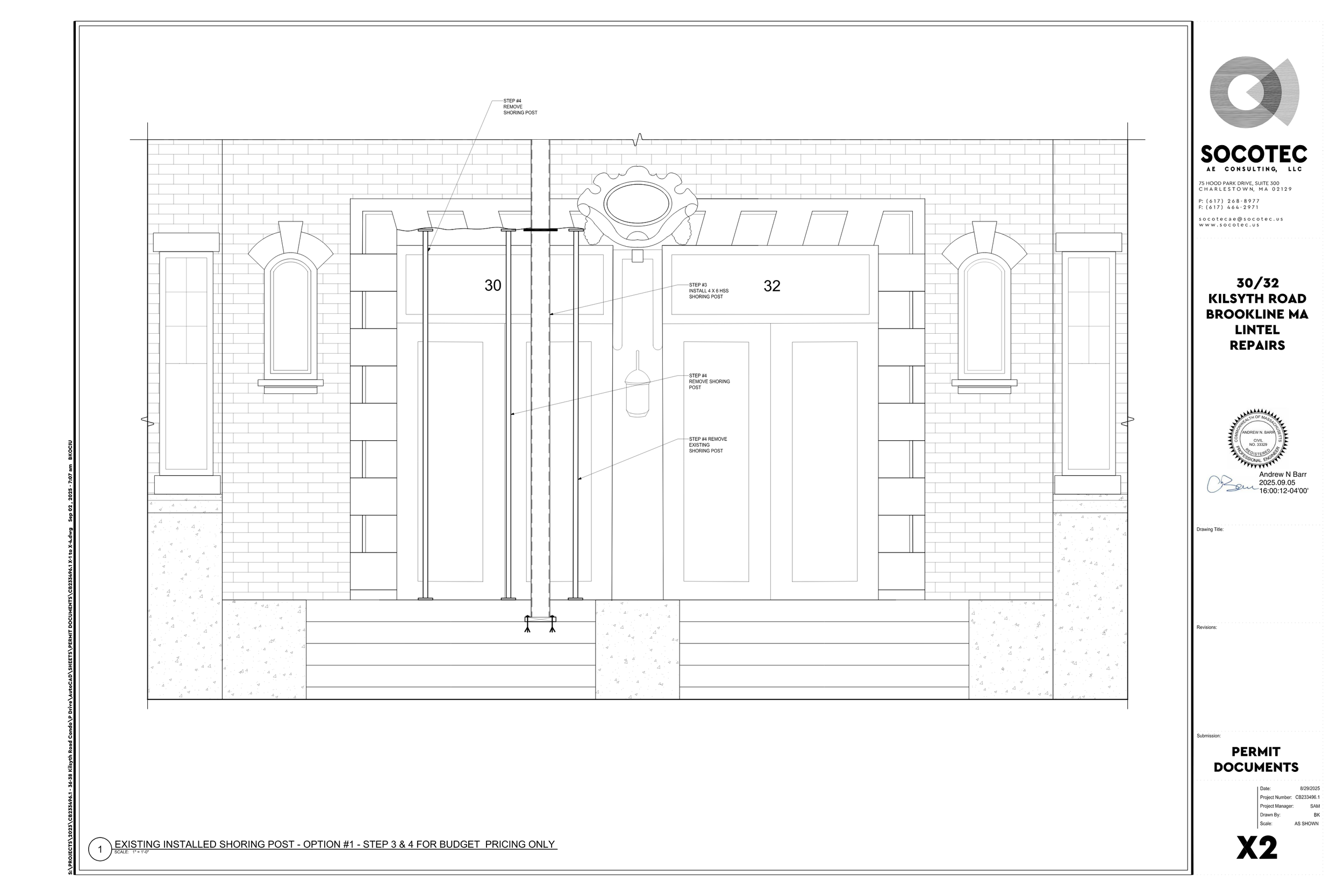
  • Location:‍ ‍Brookline, MA

  • Timeline:

  • Key Features:

    - Removal of deteriorated lintels and compromised masonry

    - Installation of temporary shoring to maintain structural stability during demolition

    - New steel lintels installed per engineering specifications

    - Brick reconstruction with proper bonding, alignment, and moisture-control detailing

    - Restored load transfer, improved façade durability, and long-term structural reliability

Project Overview

This project addressed active structural deterioration at multiple masonry lintels along the façade. The team opened targeted sections of the exterior wall, removed failed brick, compromised steel, and degraded surrounding materials, and exposed the full condition of each lintel for engineering review. Temporary shoring was installed as needed to maintain structural stability during removal.

Project Details and Process

This project involved targeted structural lintel replacement and masonry restoration. Our team opened the façade at each affected location, removing cracked brick, failed steel lintels, and deteriorated mortar to expose the underlying structural conditions. Temporary shoring was installed to maintain proper load distribution throughout demolition.

New galvanized steel lintels were set per engineering specifications, with correct bearing, alignment, and corrosion protection. The masonry was then rebuilt course by course, restoring bond patterns, joint integrity, and proper flashing and moisture-control detailing.

The result is a stabilized façade with corrected load paths, improved durability, and long-term protection against water intrusion, delivering a reliable structural solution for engineers and property managers overseeing the building.

Results of the Project

The result is a structurally restored façade with corrected load transfer, improved durability, and a reconstructed exterior that eliminates the risks associated with deteriorated lintels and hidden moisture intrusion; delivering safer conditions for occupants and a long-term solution for property management.

Reach Out for Your Structural Lintel Repair & Masonry Stabilization

If you’re addressing failing lintels or managing structural issues within a masonry façade, Complete Property Care delivers the level of precision these repairs demand. The team handles engineered lintel replacements, targeted wall openings, shoring, and full masonry reconstruction with disciplined execution. Use the contact page when you’re ready to outline your scope and confirm whether this structural work aligns with your property’s needs.

Previous
Previous

Front Entry Restoration

Next
Next

Structural Porch Replacement